More Space. More Upgrades. Kyle, TX.

Move-in ready home for sale in Bunton Creek with a corner lot, covered outdoor living, and upgrades already in place.

1728 Amy Drive | Kyle, TX

What You'll Love

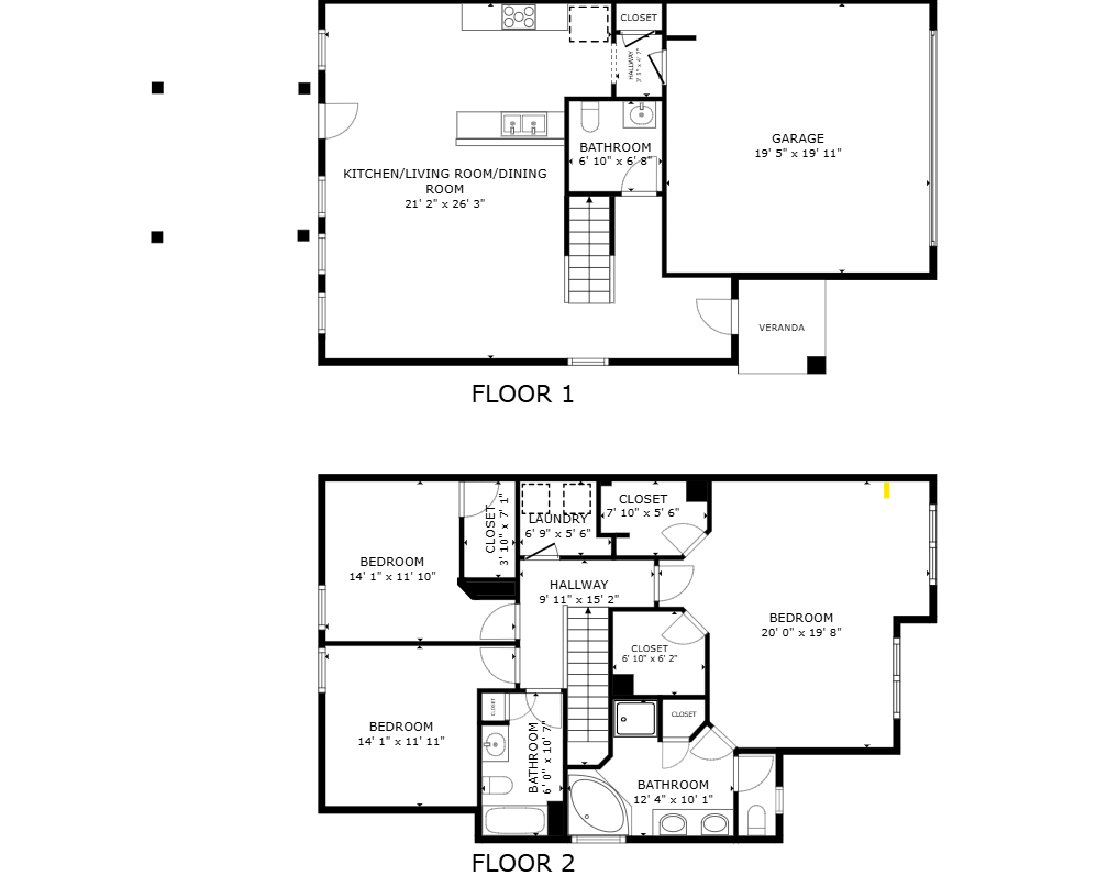
 3 Bedrooms | 3 Baths | 1,844 SqFt | 2 Car Garage 

1728 Amy Drive | Kyle, TX
Upgraded, move-in ready home on a corner lot with real value in Bunton Creek

If you’ve been searching for a home in Kyle that delivers more than builder-grade, this one stands out.

Situated on a spacious corner lot in Bunton Creek, this 3 bedroom, 3 bathroom home offers upgraded finishes, thoughtful design, and everyday functionality without the wait or added cost of new construction.

From the moment you walk in, the main living space feels ready to go. The large mounted TV is included, making it easy to settle in and start enjoying the home right away. The kitchen comes fully equipped with appliances included, giving buyers immediate value and convenience.

Upstairs, the layout is simple and functional, with generously sized bedrooms and impressive storage. The oversized walk-in closets offer the kind of space that buyers consistently look for and rarely find at this price point.

Out back, the covered deck creates a comfortable extension of the home, perfect for quiet evenings or casual get-togethers. The corner lot adds a sense of openness and privacy that sets this property apart from others nearby.

Bunton Creek is known for its strong community feel and convenient access to both Kyle and South Austin. You’re just minutes from shopping, dining, and everyday essentials, with quick access to I-35 for commuting. The area continues to grow, with new local spots and future development adding even more appeal, including the buzz around the upcoming “A Little Shady” concept nearby.

Why this home stands out:
• Corner lot with added space and privacy
• Upgraded beyond typical builder-grade finishes
• Large mounted TV and appliances included
• Covered outdoor living space
• Generous bedroom sizes and oversized closets
• Located in Bunton Creek with easy access to Kyle and South Austin

For buyers comparing homes in Kyle, especially against new construction, this one offers a clear advantage. The upgrades are already done, the features are already in place, and the value is easy to see.

Owner's Top Ten List

Virtual Tour & Floorplan

Contact Me

Loading Contact Me...